| CARATTERISTICHE
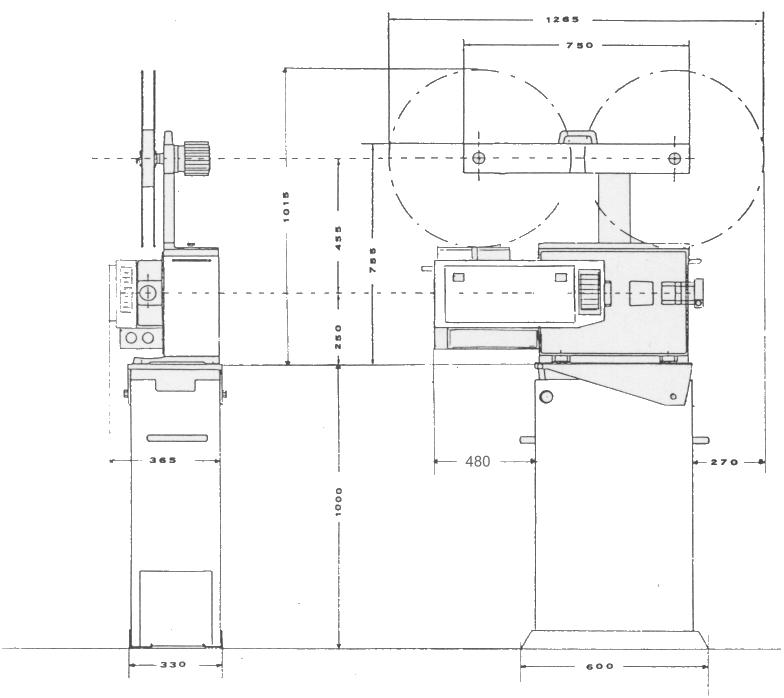
        TECNICHE:  -Proiettore cinematografico 35 mm. trasportabile, diviso in 2 parti: un corpo proiettore classico e una lanterna separata che facilmente si innesta al corpo proiettore con lampada Xenon 1000W - 1600W - 2000W - 2500W - 3000W orizzontale, ventilazione forzata sul catodo ed aspirazione sull'anodo. -Accendilore automatico per lampada incorporato. -Specchio in vetro con trattamento anticalore Ø280mm, massimo rendimento luminoso ed uniformilà di illuminazione. -Amperometro digitale per corrente lampada incorporato. -Contaore per lampada incorporato. -Oscuratore della luce di proiezione elettromagnetico. -Blocco di scatto a Croce di Malta in bagno dolio. -Comando di messa in quadro con rifasamento automatico dellotturatore. -Velocità di scorrimento del film 24FPS, massima silenziosità (in opzione velocità variabile). -Supporto per obiettivi intercambiabili Ø 62,5 mm. o Ø 70,6mm. -Supporto per obiettivo anamorfico incorporato. -Mascherine per i vari rapporti di proiezione: 1, 75/1,37 - 1,66/2,35 - 1,85 intercambiabili. -Dispositivo a LED rosso per leggere le traccie audio. -Lettura stereo della colonna sonora con cellula DOLBY e preamplificatore stereo incorporato 1Vpp con spina d'uscita XLR per ogni canale. -Comandi a pulsanti con indicazione luminosa. -Dispositivo di arresto automatico in caso di rottura del film: uno all'inizio del percorso pellicola che fa chiudere la serranda e l'audio e uno alla fine che ferma il proiettore, abilitati entrambi dalla selezione della sicurezza. -Alimentazione standard 220V 50Hz Monofase. -Peso del proiettore senza braccio: 40Kg. Peso della lanterna: 25Kg. Peso del braccio eventuale: 10Kg. Peso della base portaproiettorecon portabobine: 30Kg. OPTIONAL FORNIBlLI A RICHIESTA: -Alimentatore elettronico AL4K monofase per lampada Xenon 1000 - 3000W. -Braccio portabobine, asportabile, per bobine fino a 1800 mt. dotato di motore Torque, per Iavvolgimento del film. -Basamento con piano inclinabile, per il piazzamento in cabina. -Secondo motore sul braccio o sulla base portaproiettore per il riawolgimento del film. -Amplificatore HI FI 50W RMS su 4 Ohm per entrambi i canali interamente ad integrati, incorporato. -Altoparlante pilota incorporato con interruttore di commutazione L / R. -Casse altoparlante 150W. -Alimentazione diversa da quella standard. -Presa e cavo di collegamento per funzionamento in coppia. -Torretta rotante manuale per 2 obiettivi Ø 62,5mm. -Serie di bobine. -Velocità variabile dei fotogrammi sia elettronica che meccanica. -Dispositivo per retromarcia.  | 
        CARACTERISTIQUES
        GENERALES: -Projecteur 35mm. portable in 2 parties: un corps projecteur et une lanterne croche à le corps meme. -Lampe Xenon 1000W - 1600W - 2000W - 2500W - 3000W en position horizontale. -Amorçeur automatique pour lampe incorpore dans Iappareil. -Miroir in verre avec le traitement antichaleur à très haut rendement Ø 280mm. -Ampèremètre numerique pour courant de la lampe incorporé. -Compteur horaire pour la lampe incorporé. -Volet de lanterne electromagnetique. -Bloc de croix de Malte à bain dhuile. -Cadrage avec dispositif de mise en phase obturateur. -Defilement: 24 images/seconde ou variable. -Porte objectif diamètre 62,5 mm. ou 70,6 mm. -Support danamorphoseur incorpore. -Caches de projection 1.75/1,37 -1.66/2.35 - 1,85 interchangeables. -Dispositif LED rouge pour rire les traces du son. -Cellule stereo DOLBY avec support et preamplificateur stereo 1Vpp avec 2 fiches (droite et gauche) pour ampli auxiliare incorporee. -Contròle par boutons-poussoirs lumineux. -Dispositif de sécurité de rupture du film, habilité par le interrupteur de sécurité. -Alimentation: Standard 220V. 50Hz. Monophase. -Poids Projecteur (sans bras): 40 Kg; poids lanterne: 25Kg; ensemble bras: 10 Kg; base avec portabobines: 30 Kg. OPTIONS: -Redresseur electronique AL4K monophasé pour lampe Xenon 1000 - 3000W. -Bras pour bobines de 1800 mètres avec moteur torque. -Base pour installation cabins. -Bras ou base porte bobine avec moteur de reembobinage rapide. -Ampli stereo, puissance 50+50 Watts R.M.S. sur 4 Ohm. -Haut-parleur temoin incorpore avec interrupteur L/R. -Box haut-parleur 150 Watts. -Autres types dalimentation. -Prise et cable de connexion pour le fonctionnement enchaine de deux projecteurs. -Tourelle manuelle pour 2 objectifs Ø 62,5mm. -Serie de bobines. -Defilament variable électronique ou mécanique. -Dispositif pour marche arrière.  | 
        GENERAL
        SPECIFICATIONS:  -35mm. film projector for portable and static service with lamphouse separable. -Horizontal Xenon lamp 1000W - 1600W - 2000W - 2500W - 3000W. -Built-in automatic lamp igniter. -High-performance glass mirror reflector with anti-I.R. coating Ø 280mm. -Built-in digital ampere-meter for current lamp. -Built-in elapsed hours meter for projection lamp. -Lamphouse electromagnetic douser. -Oil bath lubrificated intermittent unit. -Framing control with shutter phase setting. -Standard film speed 24 frames/sec or variable. -Lens holder for lens barrels Ø 62,5 mm. or 70,6 mm. -Built-in anamorph holder. -Interchangeable projector ratios 1,75/1,37 - 1,66/2,35 - 1,85. -Red LED sound scanner. -Optical DOLBY stereo sound scanner. -2 XLR socket (L/R) for auxiliary amplifier 1Vpp. -Illuminated push-button function controls. -Film rupture safety device, enable by safetyswitch. -Standard power supply: 220V. 50 Hz. Monophase. -Weights: Projector unit: 42 Kgs.; lamphouse: 25 Kgs. Spool arm: 10 kgs.; Base with spool holder: 30 Kgs. EQUIPMENT: -Electronic power supply unit AL4K monophase for lamp Xenon1000 - 3000W. -Spool arm for 1800 meters reels, complete with take-up and winding motor. -Base for static projections. -Second motor fitted on the spool arm or base with spool holder for fast re-winding. -Built-in optical sound amplifier stereo 50+50 Watts r.m.s. (on 4 Ohms load). -Built-in monitor speaker with switch control L/R. -Loud-speaker 150 Watts. -Different power supply. -Socket and cable connection for the change-over between two projectors. -Manual turret for 2 lens Ø 62.5mm. -Spool set. -Device for the film speed control, electonic or mechanics. -Reverse run facilities.  | 
      
| MICROCINE
        S.n.c. via Viazza Sinistra, 2 -
        40054 MEZZOLARA di BudrioBologna Italia. Tel. & fax: +39 335
        655 4468 http://www.microcine.it e-mail: microcine@microcine.it  | 
      ||